Gemeente Rotterdam roept erfgenamen van Wilhelmina Meppelder op
De gemeente Rotterdam heeft een oproep gedaan in lokale kranten aan de erfgenamen van Wilhelmina Fokkolina Meppelder om zich te melden, meldt Nieuws Impuls.
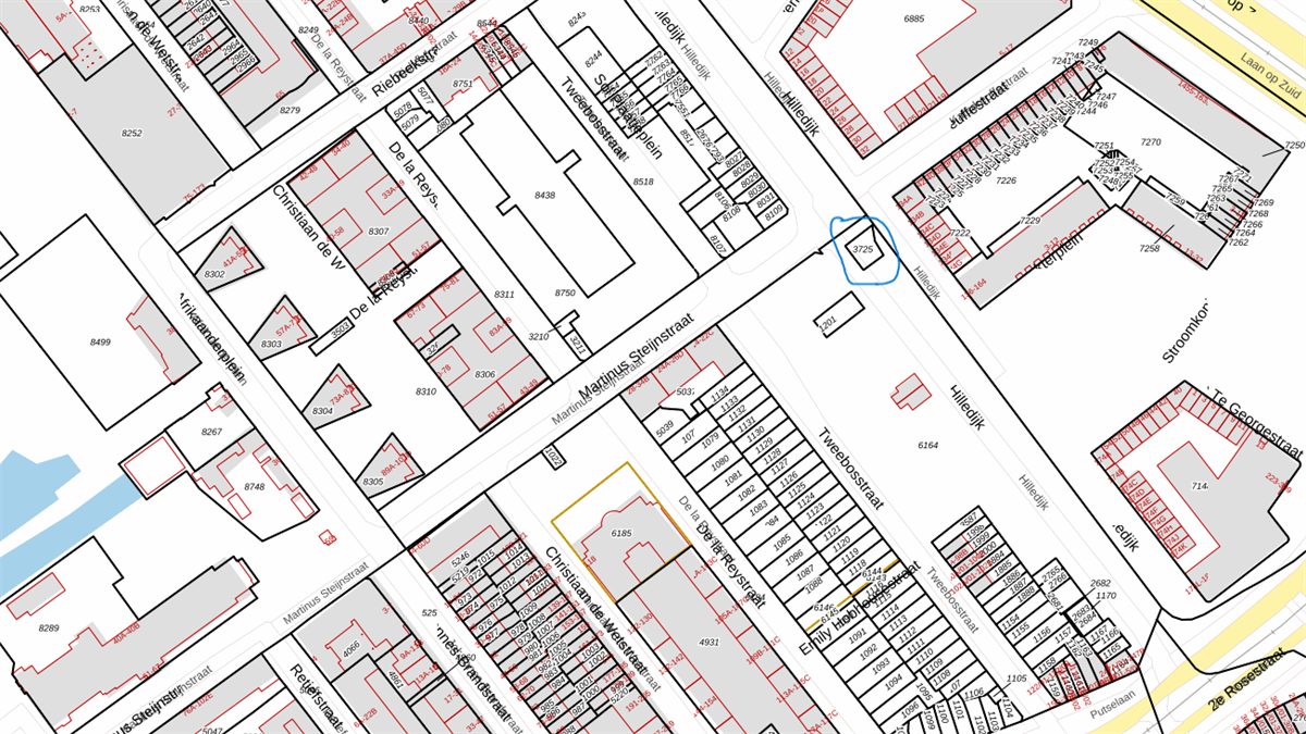
Meppelder, geboren op 10 september 1852, woonde op het laatst van haar leven aan de Hilledijk 155 te Rotterdam. De gemeente is momenteel druk bezig met de herontwikkeling van de Tweebosbuurt rondom deze locatie.
Na een langdurige juridische strijd met huurders worden tal van verouderde corporatiewoningen gesloopt en vervangen door nieuwbouw. Sinds 2019 heeft de gemeente bijna alle benodigde grond onteigend, met uitzondering van één perceel: Charlois G 3725, een perceel van 106 m² gelegen aan de Hilledijk 134.
De gemeente heeft nog geen rechtmatige eigenaar kunnen vinden voor dit stukje grond. In de oproep worden ook twaalf familieleden van de eigenares genoemd, van wie geboorte- en/of overlijdensdata en laatste woonadres onbekend zijn.
Als de erfgenaam gevonden wordt, hoeven zij echter niet te rekenen op een grote financiële opbrengst. De marktwaarde van vergelijkbare percelen in de regio ligt tussen de € 300 en € 700, maar de gemeente geeft aan dat deze schatting “veel te hoog is”. Bovendien moet de opbrengst worden verdeeld tussen alle rechthebbenden.
 
             
                     
                     
                             
                             
                             
                             
                             
                            